Продам сад в Ростове-на-Дону

Сад в Ростове-на-Дону
Цена 18 300 000 р.
Садовое товарищество Ростов-на-Дону г.
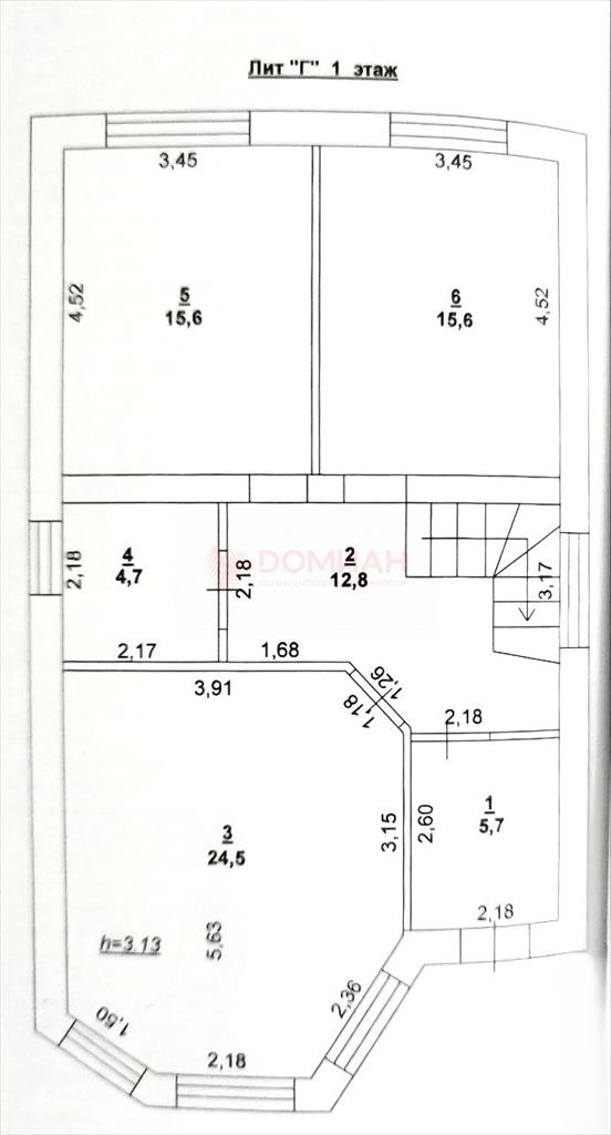
Площадь дома 245 м2, участка 3,5 м2
Арт. 132245629 Предлагается в Октябрьском районе города Ростова-на-Дону, на пересечении с ул. Особенная, отличный дом в 3-х уровнях 2018 года постройки. <ul><li data-list="bullet"><span class="ql-ui" contenteditable="false"></span> Современное домовладение с классическим ремонтом по индивидуальному проекту, построенное из качественного облицовочного кирпича. Дом на 3,5 сотках земли.</li><li data-list="bullet"><span class="ql-ui" contenteditable="false"></span> Общей площадью 245кв.м. (включая подвал под всем домом ~ 80кв.м.), жилой – 111кв.м.</li><li data-list="bullet"><span class="ql-ui" contenteditable="false"></span> Дизайнерский ремонт, продуманная планировка, просторный холл, большая кухня 25кв.м, две спальни на первом этаже, три светлые спальни (17,17, 30кв.м.) на втором, два санузла, подвал с накопительным баком для воды, системой фильтрации воды, котельная, подсобное помещение, большая комната - возможность обустройства домашнего кинотеатра или спортзала.</li></ul> <ul><li data-list="bullet"><span class="ql-ui" contenteditable="false"></span> Дом построен на глубоком фундаменте, по всем нормативам ГОСТа и СНИПов. Высота потолка в чистоте 3,0 м. Выводы воды, канализации, отопления и электрики выполнены по евростандарту, теплый пол под плиткой. Ремонт выполнен в стиле «современная классика» из высококачественных материалов. Пол керамогранит, ламинат, итальянские обои. Кухонная мебель-натуральное дерево. Многоуровневое освещение. Потолки-гипсокартон. Лестница - натуральный мрамор + кованное ограждение. Система вентиляции и кондиционирования. Система видеонаблюдения с подключением через телефон.</li><li data-list="bullet"><span class="ql-ui" contenteditable="false"></span> Тротуарная плитка по всей территории участка. Уютная беседка.</li><li data-list="bullet"><span class="ql-ui" contenteditable="false"></span> Уличный вывод воды для полива. Ландшафтная клумба. Хозблок. Уличный туалет. Выгребная яма 20м³. По фасаду кирпичный забор, ролл ворота и калитка с домофоном.</li><li data-list="bullet"><span class="ql-ui" contenteditable="false"></span> Удобный выезд на ул. Особенная и ул. Оганова. Проезд закрыт шлагбаумами.</li></ul> Правовая и техническая документация оформлена надлежащим образом, обременений нет.
Объявление № 23984781
Дата подачи:
27 марта 2026 г. 23:19
Дата обновления:
27 марта 2026 г. 23:19
Просмотров 1 Хотите продать быстрее?

Продавец
Агентство недвижимости:
Светлана
email: lana.chebykina.73@bk.ru
Показать номер телефона
Пожаловаться
Комментарии:
Добавить